Poslovni centar “Rebrača” objavljen na portalu Super Prostor
Poslovni centar “Rebrača” Domus Arhitekata objavljen je na portalu Super Prostor, sa tekstom glavnog arhitekte Domus tima i fotografijama Relje Ivanića pod naslovom “Tržni centar u istorijskom gradskom jezgru Sombora”.
Super Prostor je internet portal za arhitekturu i kulturu prostora. Pored praćenja događaja, konkursa i kritičkog pogleda na procese u prostoru kroz uporedne analize, foto-reportaže, intervjue, prikazom aktuelnih realizacija Super Prostor stvara bazu podataka arhitekture u regionu, kao podlogu za informisanje, analize, i promociju struke. Savremena, interaktivna internet platforma, bliska i dostupna mlađoj generaciji arhitekata kojoj se prvenstveno obraća – kroz sam sajt, kao i kroz svakodnevnu razmenu informacija na društvenim mrežama Facebook i Twitter oživljava pisanje i diskusije o arhitekturi u Srbiji.
Objavljeni tekst
Tržni centar u istorijskom gradskom jezgru Sombora
U današnjem ekonomskom i društvenom kontekstu uobičajeno je da se tržni centri grade na periferiji gradova, gde su lokacije jeftinije i saobraćajno pristupačnije, a projektovanje manje zahtevno. Objekat tržnog centra u Somboru arhitektonskog biroa Domus govori o drugačijem projektantskom pristupu i logici projektovanja tržnih centara.
Smeštanjem objekta u istorijsko gradsko jezgro Sombora, koje je zaštićeno kao nepokretno kulturno dobro od velikog značaja, omogućeno je zadržavanje trgovine u centru grada, gde je oduvek i bila. Čuvajući i podstičući životnost i posećenost drugih sadržaja (malih zanatskih, trgovinskih i ugostiteljskih radnji), ovakav objekat je održivo rešenje za grad.
Studijom zaštite na parceli bila je predviđena gradnja tri različita objekta, u nameri da se sačuva ritmična promena fasadnih platana karakteristična za Sombor. S obzirom na karakter i veličinu objekta, fasada je ipak komponovana kao jedinstvena celina, bez namere da se nova arhitektura maskira na bilo koji način. Takva koncepcija podržana je od strane Pokrajinskog zavoda za zaštitu spomenika kulture.
Objekat ukupne površine 9.000 m2 izveden je kao interpolacija u gradskom bloku uz potpunu zauzetost parcele. Uklapanje savremene arhitekture u fizički kontekst izvedeno je upotrebom boje, ritmom otvora i raščlanjivanjem dugačke fasade na manje celine u okviru jedinstvenog volumena objekta.
Posmatrajući stilsku arhitekturu i tipičnu urbanističku profilaciju vojvođanske gradske ulice, udaljeni objekti se sagledavaju kao obojene površine s nizom vertikalnih linija (rizaliti, pilastri, edikule, šembrane…). Približavanjem svakom objektu polako se opažaju tamne površine otvora, a zatim i raspored otvora i kompozicija fasade.
Prateći taj efekat, objekat tržnog centra opaža se iz daljine kao niz svetlo-sivih i žutih vertikala, čime se ublažava utisak o njegovoj veličini. S obzirom na to da su objekti u okruženju male spratnosti, ova raščlanjenost fasadne površine vizuelno objedinjuje ulični profil, koji bi u protivnom bio naglašeno prekinut. Približavanjem objektu otkriva se niz širih žutih i belih vertikalnih polja na fasadi, u skladu sa najčešćim bojama starih somborskih fasada.
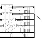
Fasada je po vertikali raščlanjena na prizemlje tamnosivih tonova (samoposluga), zatim na osnovni korpus prvog i drugog sprata nad njim (lokali), i diskretni, povučeni treći sprat (kafe sa krovnom terasom i pogledom na grad). Po horizontali se smenjuju otvoreniji i zatvoreniji segmenti fasade, uključujući ulaznu partiju i stepenište, koji vizuelno povezuju etaže objekta po vertikali. Sve to doprinosi dinamičnosti utiska prolaznika o objektu.
Kako je ovaj tržni centar pre svega definisan samo jednom fasadom u specifičnoj urbanoj profilaciji, odnos funkcija po etažama pažljivo je prilagođen otvorima na fasadi, koja kao takva gubi zatvorenost karakterističnu za arhitekturu tržnih centara.
- osnova garaže
- osnova prizemlja
- presek
- osnova prvog sprata
- osnova drugog sprata
- osnova trećeg sprata
- izgled


















